不動産屋.co.jp

鹿ケ谷上宮ノ前町戸建 1号室

京都府京都市左京区鹿ケ谷上宮ノ前町 京阪鴨東線「神宮丸太町」駅:徒歩28分

立地・周辺環境

  • 第三錦林小学校(181m)
  • 岡崎中学校(618m)
  • ノートルダム女学院高等学校(224m)
  • 京都造形芸術大学(2116m)
  • 京都大学(2455m)
  • 京都天王町郵便局(625m)

建物・共有部分

  • 駐輪場
  • 光ファイバー
  • 都市ガス

住居部分

  • バストイレ別
  • バルコニー
  • エアコン
  • TVインターホン
  • 浴室乾燥機
  • システムキッチン
  • 温水洗浄便座
  • 洗面所独立
  • 床暖房

物件OUTLINE

物件種別 マンション 所在地 京都府京都市左京区鹿ケ谷上宮ノ前町
建物構造 木造/地上2階建て 築年月 1995-11
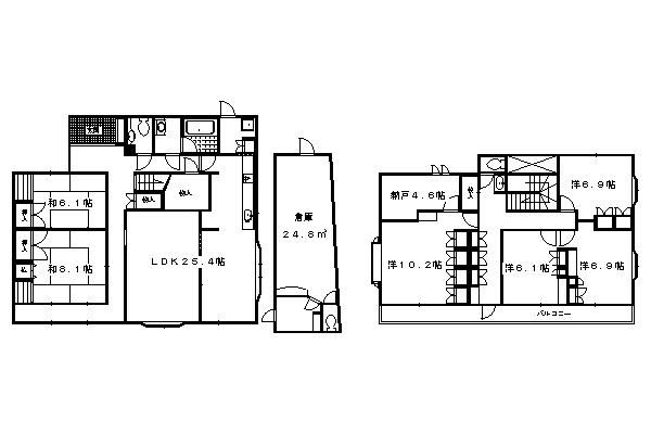
面積 190.86㎡ 間取り 6LDK
間取り詳細 和室8.1畳/和室6.1畳/洋室10.2畳/洋室6.9畳/洋室6.9畳/洋室6.1畳/L12.2畳/D7.6畳/K5.6畳/納戸4.6畳 使用部位 1階号室
向き 入居時期 即時
契約形態 普通賃貸借契約 更新料 ¥0
駐車場 取引様態 仲介
交通
京阪鴨東線「神宮丸太町」駅:徒歩28分
京阪鴨東線「神宮丸太町」駅:徒歩28分
条件
備考 0
入居時に必要な金額(目安)
家賃(初月) 280,000円
敷金 140,000円
礼金 560,000円
管理費 0円
共益費 0円
仲介料 0円
保険料 0円
鍵交換費 0円
クリーニング費 0円
保証金 0円
保証会社 0
その他費用 0円
その他費用内容 0
980,000円
毎月必要な金額(目安)
家賃 280,000円
管理費 0円
共益費 0円
その他費用 0円
その他費用内容 0
280,000円
初期費用等を目安としてお知らせしております。本ページ内に記載されている費用等すべての数値は概算になります。上記の一般的な初期費用以外に、その物件特有の費用が初回に発生する場合があります。正確な金額や詳細についてはお問い合わせいただき、あくまで参考としてご利用くださいますようお願い申し上げます。
物件番号
581225-201621
本サイト-取り扱い先
お電話でお問い合わせの際はこちらの番号をお伝えください
賃貸情報改ざん防止コード : ZJR190322ba5a831fd13bf57120d4095d061c7144d675dfd94
取り扱い
〒 - 京都府京都市左京区田中下柳町 8?13
FC -
定休日 無休
TEL 075-762-0300
FAX -
URL -
免許 京都府知事(1)第13569号
加盟 -