不動産屋.co.jp

フレグランス郡山

福島県郡山市堤1 東北新幹線「郡山」駅: バス停25分

立地・周辺環境

  • ヨークベニマル大槻店 (864m)
  • セブンイレブン郡山堤1丁目店 (75m)
  • カインズホーム大槻店 (1052m)
  • コメリハード&グリーン希望ケ丘店 (983m)
  • 郡山市立大成小学校 (899m)
  • 大東銀行大槻支店 (261m)

建物・共有部分

  • エレベーター
  • 駐輪場
  • BS

住居部分

  • バストイレ別
  • バルコニー
  • エアコン
  • TVインターホン
  • システムキッチン
  • 洗面所独立

物件OUTLINE

物件種別 マンション 所在地 福島県郡山市堤1
建物構造 RC/地上6階建て 築年月 1989-06
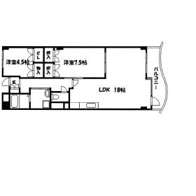
面積 68.31㎡ 間取り 2LDK
間取り詳細 洋室8畳/洋室5畳/LDK18畳 使用部位 2階号室
向き 入居時期 即時
契約形態 普通賃貸借契約 更新料 ¥0
駐車場 有 (¥4,320) 取引様態 代理
交通
東北新幹線「郡山」駅: バス停25分
東北新幹線「郡山」駅: バス停25分
東北新幹線「郡山」駅: バス停25分
東北新幹線「郡山」駅: バス停25分
東北新幹線「郡山」駅: バス停25分
条件
備考 二人入居可/ペット相談
入居時に必要な金額(目安)
家賃(初月) 78,000円
敷金 78,000円
礼金 78,000円
管理費 0円
共益費 0円
仲介料 0円
保険料 0円
鍵交換費 0円
クリーニング費 0円
保証金 0円
保証会社 1ヶ月
その他費用 0円
その他費用内容 駐輪場が敷地内/ゴミ置き場が敷地内/巡回管理/ペット飼育可(室内小型犬1匹)。ペット飼育の場合、敷金2ヶ月分お預かりいたします。駐車場1台4,000円(税別)。
234,000円
毎月必要な金額(目安)
家賃 78,000円
管理費 0円
共益費 0円
その他費用 0円
その他費用内容 駐輪場が敷地内/ゴミ置き場が敷地内/巡回管理/ペット飼育可(室内小型犬1匹)。ペット飼育の場合、敷金2ヶ月分お預かりいたします。駐車場1台4,000円(税別)。
78,000円
初期費用等を目安としてお知らせしております。本ページ内に記載されている費用等すべての数値は概算になります。上記の一般的な初期費用以外に、その物件特有の費用が初回に発生する場合があります。正確な金額や詳細についてはお問い合わせいただき、あくまで参考としてご利用くださいますようお願い申し上げます。
物件番号
7020742-201647
本サイト-取り扱い先
お電話でお問い合わせの際はこちらの番号をお伝えください
賃貸情報改ざん防止コード : ZJR190401e01f3ef286103625a7bb9b2c9fb6b8751414e59eb
取り扱い
〒 963-8071 福島県郡山市富久山町久保田字久保田118
FC -
定休日 毎週水曜日、1、2、3、4月は無休
TEL 024-995-3855
FAX 024-935-1077
免許 福島県知事(3)第2383号
加盟 -